Yellowknife’s forgotten Bellanca building set to become 72

A 10-storey downtown Yellowknife building that has lain empty for years is set to be reborn as a 72-unit apartment complex with retail stores.

Plans to renovate the Bellanca building have been approved by the City of Yellowknife and were made public this week, a decade after the block was last occupied by anyone.

After the federal government vacated the Bellanca in 2012, nothing happened until Yellowknife-based Borealis Development bought the building for a reported $1.4 million earlier this year.

Advertisement.
Yellowknife’s forgotten Bellanca building set to become 72

The company’s renovation plans appear to achieve what many residents and local politicians have long suggested: using the empty building to help ease Yellowknife’s housing crisis.

A rendering of the Nest building's street-level exterior
A rendering of the Nest building’s street-level exterior. Image: Sphere Architecture

Documents filed at City Hall show the new-look Bellanca has a working title of the Nest building and will offer eight apartments on each of floors two to 10, if renovation work goes ahead as planned.

Floor plans suggest half will be one-bed units and half will have two bedrooms, with shared laundry facilities, basement storage cages, a gym area and bike racks. The main floor will offer space for two retail outlets.

Based on those floor plans, the building will house up to 108 people.

Advertisement.

The building will offer 20 parking spaces, one of them accessible and three devoted to car-share programs, taking advantage of city zoning rules that do not specify a minimum amount of parking in the downtown.

Justifying this, a note from the architect states the development “aims to promote the sustainability principle of live-work-play, lessening the dependency on vehicular transportation and encouraging walking or biking.”

The note continues: “This approach would also help our residents to save by eliminating the need of owning a vehicle, and promote ethical living by reducing their carbon footprint.

“Further, the increased foot traffic in the downtown core would provide a much-needed boost to the local business by activating the sidewalks and could possibly sprout new businesses like an electric bike or scooter-sharing program, or help endorse the existing YK Car Share Co-op.”

There will be 36 bike rack stalls for residents and four for people visiting the building’s businesses. Street parking will be used for anyone driving to those businesses, as its already the case for many downtown establishments.

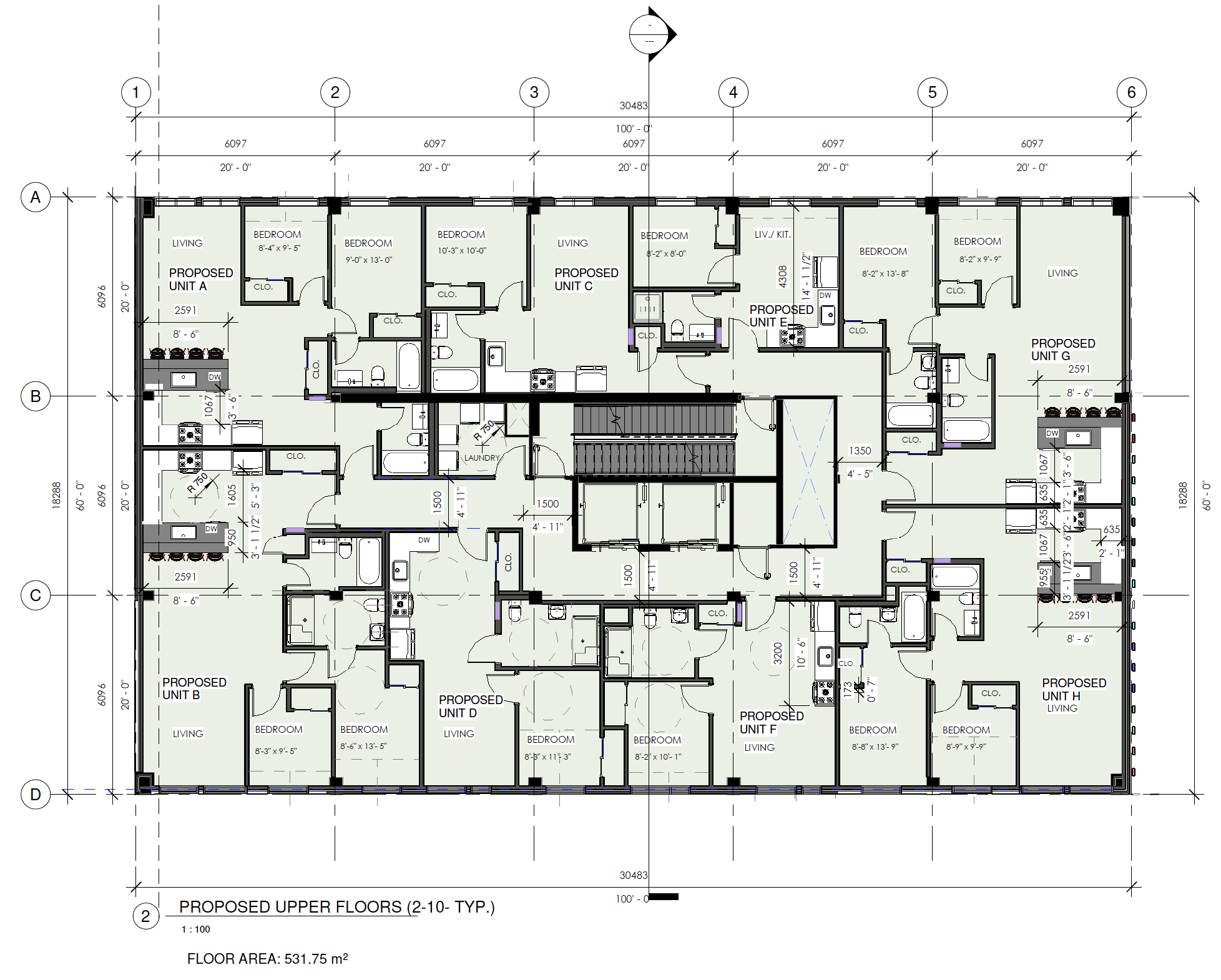
A floor plan for the Nest building as filed with City Hall
A floor plan for the Nest building as filed with City Hall. Image: Sphere Architecture

How the units will ultimately enter the market – for rental or purchase, and at what price – is not specified in the documents.

Unveiling of the development comes in the same week that housing developer Milan Mrdjenovich said he would leave Yellowknife as the number of appeals his projects faced had become untenable.

Both Mrdjenovich and construction boss Niels Konge, a city councillor set to leave Yellowknife in the new year, say the city is too hard to build in.

Renovating the Bellanca building takes a different approach. The building is mostly surrounded by stores and offices, with few nearby homes compared to the kinds of development Mrdjenovich has undertaken in residential areas of the city.

Turning the Bellanca into this kind of project has long been a dream of some locals. A similar project was discussed several years ago but stalled without ever becoming a realistic prospect.

More recently, tearing the building down had seemed almost as likely an outcome. The cost of doing so was put at around $4 million.

The building, offering 5,575 square metres of space, opened in 1973 and was last extensively renovated in 1996.

The most visible sign of its abandonment for the past decade came in 2018, when a significant amount of siding fell from the building early one morning. Largely thanks to the quiet time of day, nobody was hurt.

Plans for the Nest building suggest the Bellanca will receive a full exterior refit that includes new siding, the colours of which appear to approximate the northern lights.

Advertisement.